上越市柿崎区 事務所の物件情報
新潟県上越市柿崎区馬正面1176-1 地図
|
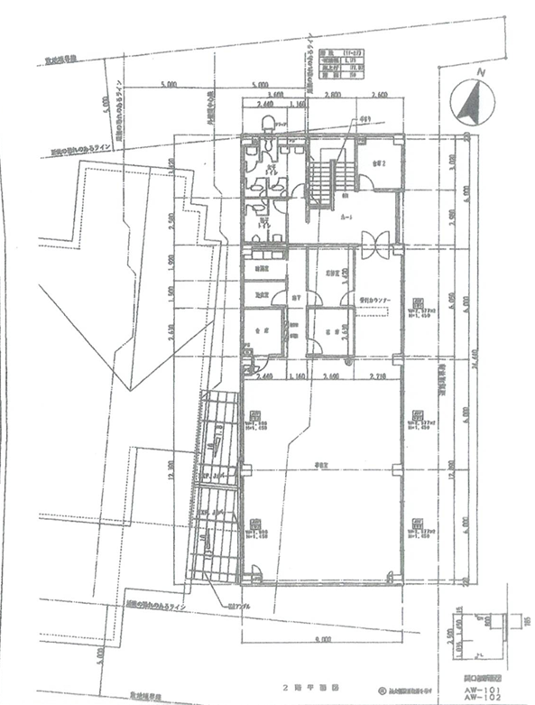
約220㎡のゆったり貸事務所! 男女別トイレ2カ所・給湯室あり・プロパンガス対応。 駐車スペースはたっぷり10台分確保◎ 来客対応やスタッフの通勤にも便利な広さと設備が魅力です。 事務所・営業所・福祉系施設など多用途に対応可能
賃料
70,000円
管理費等
-
共益費
5,000円
敷金
140,000円
礼金
0円
保証料
0
専有面積
219.96㎡
土地面積
建物面積
間取り
所在階
2階
築年数
2012年6月築
方位
構造
物件概要
| 物件名 | 上越市柿崎区 事務所 | 物件番号 | 111-4353 |
|---|---|---|---|
| 所在地 | 新潟県上越市柿崎区馬正面1176-1 | ||
| 交通アクセス | |||
| 物件種目 | 貸事務所 | 総戸数 | 戸 |
|---|---|---|---|
| 構造 | 階建 | 地上2階建 | |
| 所在階/階数 | 2階/2階 | 専有面積 | 219.96㎡ |
| 方位 | 土地面積 | ||
| 建物面積 | 間取り | ||
| 賃料 | 70,000円 | 管理費 | - |
| 敷金 | 140,000円 | 礼金 | 0円 |
| 共益費 | 5,000円 | その他初期費用 | |
| 維持費等 | 更新料 | ||
| 町内会費 | 火災保険 | ||
| 保証金 | 0 | 保証人代行 | |
| 取引態様 | 媒介(仲介) | 仲介手数料 | |
| 駐車場 | あり | 築年月 | 2012年6月築 |
| 学校区 | 入居時期 | 相談 | |
| おすすめポイント | 法人可, 事務所利用可, ロープライス | ||
|---|---|---|---|
| 設備・サービス | 駐車可, 駐車3台以上可, 駐車場2台無料, トイレ2か所以上, LPG, 礼金不要 | ||
| 備考 | 賃料要相談 | ||
| 管理業者 |
田中不動産株式会社 新潟県上越市土橋1154-1ワグリオフィスA |
||
|---|---|---|---|
| 情報掲載日 | 2025-12-12 | 次回更新予定日 | 2026-03-28 |
この物件の地図
管理業者
| TEL | 025-512-5001 |
|---|---|
| 所在地 | 新潟県上越市土橋1154-1ワグリオフィスA |
| 交通 | 妙高はねうまライン 高田駅 |
| 営業時間 | 9:00~18:00 |
| 免許番号 | 国土交通大臣免許(2)第9635号 |
| 所属団体名 | 公益社団法人 全国宅地建物取引業協会連合会 |
| 取引態様 | 媒介(仲介) |
| ホームページ | https://www.tanakafudousan-inc.co.jp/ |

新潟県 の不動産情報サイト


